売マンション ソシエール南5条 2階
| 価格 | 950万円 | 管理費 | 9,400円/月 | ||
|---|---|---|---|---|---|
| 交通 | 札幌市電 / 東本願寺前駅 徒歩4分 | ||||
| 所在地 | 北海道札幌市中央区南五条西9丁目 | ||||
| 築年月 | 1982年11月(築43年4ヶ月) | 使用部分面積 | 壁芯 47.02㎡ | 土地面積 | - |
| 階建 / 階 | 7階建/2階 | 用途地域 | 商業地域 | 建物構造 | RC |
- 駐車場(近隣含む)
- エレベーター
- 即引渡し可
物件詳細情報
| 交通 | 札幌市電 / 東本願寺前駅 徒歩4分 | ||
|---|---|---|---|
| その他交通 | 札幌市南北線 / すすきの駅 徒歩9分 札幌市東西線 / 西11丁目駅 徒歩9分 |
||
| 所在地 | 北海道札幌市中央区南五条西9丁目 | ||
| 物件種目 | 売マンション | ||
| 価格 | 950万円 | 管理費 | 9,400円/月 |
|---|---|---|---|
| 修繕積立金 | 8,500円/月 | 借地期間・地代(月額) | -(-) |
| 権利金 | - | 敷金/保証金 | -/- |
| 維持費等 | 水道基本料:1,600円/月 | その他一時金 | - |
| 建物名・部屋番号 | ソシエール南5条 | ||
|---|---|---|---|
| 設備 | 宅配BOX 収納スペース 室内洗濯機置場 オートロック 防犯カメラ 冷蔵庫 エレベーター 車寄せスペース 都市ガス FF暖房 暖房 インターネット対応 BS端子 | ||
| 特記事項 | リフォーム 常時ゴミ出し可能 2面採光 閑静な住宅街 管理人日勤 | ||
| 備考 |
管理形態/管理員の勤務形態:全部委託/日勤 想定家賃収入:63.55万円 |
||
| 使用部分面積 | 壁芯 47.02㎡ | 土地面積 | - |
|---|---|---|---|
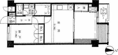
| 間取り | 2DK | 階建/階 | 7階建/2階 |
| 築年月 | 1982年11月(築43年4ヶ月) | 建物構造 | RC |
| リフォーム履歴 | ■内装:2024年03月 壁・天井(クロス・塗装等) 壁・天井のクロス貼替、照明器具設置、2024年5月ガス暖房機に交換 ■その他:2024年03月 内装(壁 壁・天井のクロス貼替、照明器具設置、2024年5月ガス暖房機に交換) |
||
| 駐車場 | 空無 | バイク置き場 | - |
| 駐輪場 | 有 | ||
| 都市計画 | - | 用途地域 | 商業地域 |
| 建ぺい率 | - | 容積率 | - |
| 土地権利 | 所有権 | 私道負担面積 | - |
| 接道状況 | - | 地目 | - |
| 地勢 | 平坦 | 総戸数 | 62戸 |
| 国土法届出 | - | ||
| 条件等 | オーナーチェンジ | ||
|---|---|---|---|
| 現況 | 賃貸中 | 引渡可能時期 | 相談 |
| 物件番号 | 1151204314 | ||
| 情報公開日 | 2025/12/08 | 次回更新予定日 | 2026/02/22 |
※「-」と表示されている項目については、情報提供会社にご確認ください。
情報提供会社
(株)パイン住幸
- 交通:
- JR千歳線/恵み野 徒歩2分
- 住所:
- 北海道恵庭市恵み野西1丁目8-3 EASTビル2F
- TEL:
- 0123-37-6666
- FAX:
- 0123-37-6667
- 所属団体など:
(公社)北海道宅地建物取引業協会会員 (一社)北海道不動産公正取引協議会加盟 - 取引態様:
- 媒介
- 免許番号:
- 北海道知事免許 石狩(2)第8447号
- 間取図は、現況を優先させていただきます。
- 映像は物件の一部を撮影したものです。物件の契約にあたっての最終判断はご自身の判断に基づいて行ってください。
-
仲介手数料について
仲介手数料とは 売主と買主の契約の仲立ちを行う不動産会社に支払う報酬です。
宅地建物取引業法等(法第46条・建設省告示第1552号他)により取引態様ごとに受け取ることのできる報酬の上限額が定められています。
取引態様が「売主」の場合は不要です。
「媒介(一般・専任・専属専任)」「仲介」の場合、売買代金を以下のように区分し、それぞれ定められた割合を乗じて得た金額の合計額が上限となります。
(建物に係る消費税額を除外した額)200万円以下の金額 5.5% 200万円を超え400万円以下の金額 4.4% 400万円を超える金額 3.3%
※参考 簡易計算方式(算出した金額が上限額となります。)200万円を超え400万円以下の場合 4.4%+2.2万円 400万円を超える場合 3.3%+6.6万円
「代理」の場合、一つの取引において、上記仲介の計算方法により算出した金額の2倍以内が上限となります。
※「低廉な空家等」物件については、特例により上記上限額を超える場合があります。
物件によって金額が異なります。
お問い合わせの際は十分ご確認ください。 - 消費税について
当サイトの課税対象となる物件価格およびその他費用等は、税込み表示となっております(100円未満は切上げ)。
詳しくは、当社までお問い合わせください。
